Mehrfamilienhaus im Stadtzentrum: 4 Wohnungen, Kapitalanlage, teilw. vermietet

Wo

Wittenberg
Lutherstadt Wittenberg

480.000 €

Kaufpreis

260 m²

Wohnfläche

9

Zimmer

Über die Immobilie

Das historische Mehrfamilienhaus wurde um 1590 errichtet und steht im Zentrum der belebten Altstadt Wittenbergs. Die Wohnlage ist aufgrund der kurzen Wege, vielfältiger Einkaufsmöglichkeiten und gastronomischen Angebote sehr beliebt.
Das zweigeschossige Haus wurde 2002 kernsaniert und ist aufgeteilt in 4 Wohneinheiten und 1 Gewerbeeinheit. Alle Einheiten, bis auf eine kleine Wohnung, sind solide vermietet.

BESONDERHEITEN
o Mehrfamilienhaus mit 4 Wohnungen und 1 Gewerbeeinheit
o Toplage im Altstadt-Zentrum in Fußgängerzone
o solide vermietet, historisches Baudenkmal von 1590
o Kernsaniert in 2002, Gasheizung von 2015

MERKMALE
o zweigeschossig, teilunterkellert
o Wohnfläche ca. 260 m², Nutzfläche ca. 400 m²
o teilweise Dielenboden, Holzfenster Iso-2-fach, Fahrradkeller
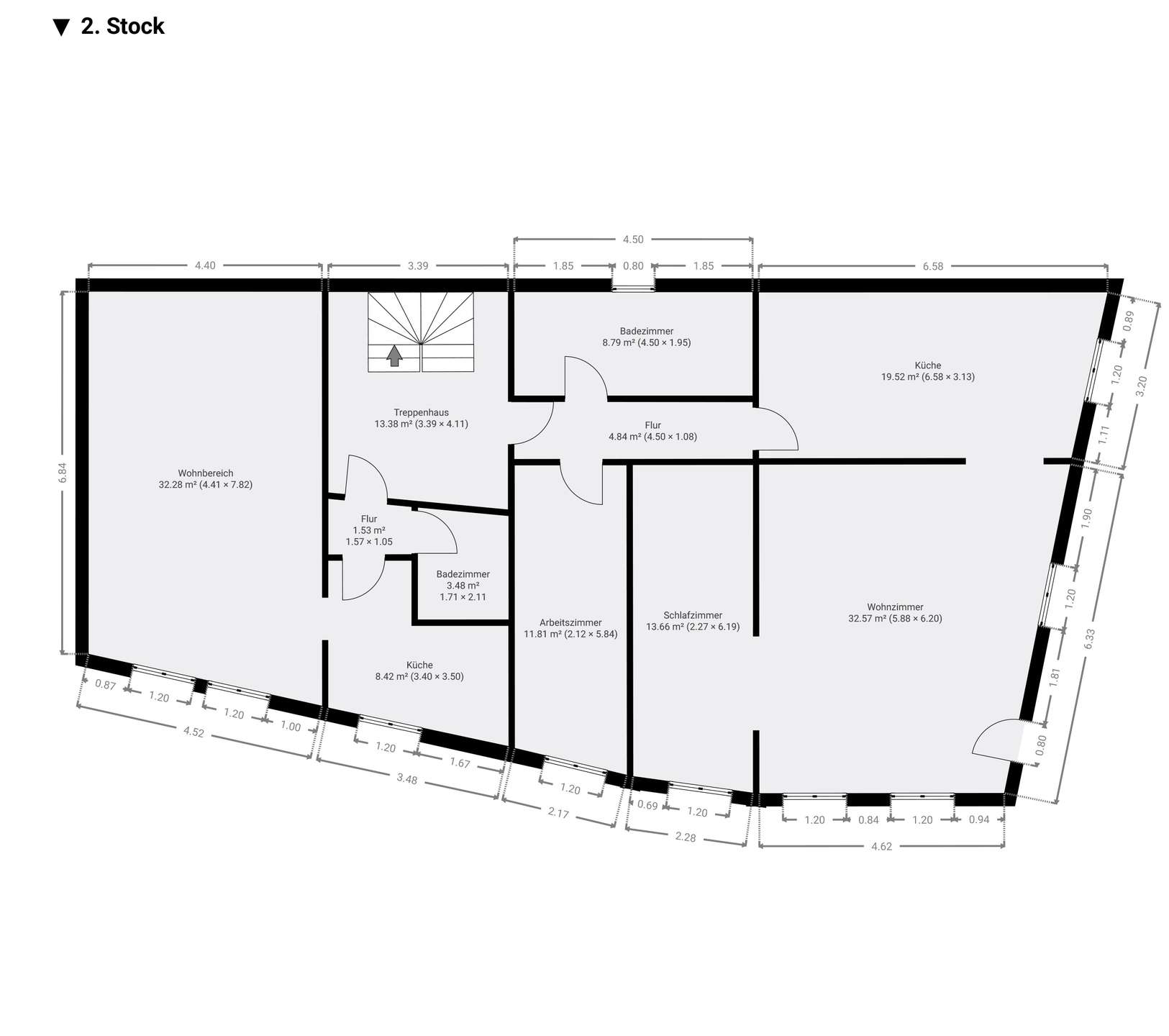
o Wohnung 2.OG links, ca. 80 m², 3 Zimmer, Duschbad, Küche
o Wohnung 2.OG rechts, ca. 33,5 m², 1 Zimmer, Duschbad, Küche
o Wohnung 1.OG rechts, ca. 33,5 m², nicht vermietet, 1 Zimmer, Duschbad, Küche
o Wohnung 1.OG links, ca. 113 m², 3 Zimmer, Duschbad, Diele, Küche Abstellraum, Balkon
o Gewerbeeinheit EG ,ca. 82,5 m², Ladenfläche: 2 Räume, 1 Büroraum, Nutzung als Einzelhandel
o Ist-Miete für 3 Wohneinheiten, 1 Gewerbeeinheit:
Gesamt ca. 1.705 € nettokalt (ca. 5,81 €/m²) / 2.306 € warm (ca. 7,75 €/m²)
o Soll-Miete für 4 Wohneinheiten, 1 Gewerbeeinheit:
Gesamt ca. 1.955 € nettokalt (ca. 6,14 €/m²) / ca. 2.622 € warm (ca. 8,09 €/m²)

LAGE
Das Mehrfamilienhaus steht direkt im Zentrum der historischen Altstadt von Wittenberg. Von hier sind es nur wenige Schritte zu der Stadtkirche St. Marien zu Wittenberg, der Fronleichnamskapelle, dem Trajuhnschen Bach und dem Wittenberger Marktplatz am Rathaus.
Die Altstadt mit der Fußgängerzone ist bei Einwohnern und Touristen sehr beliebt.

o nahes Umfeld bis 500 m: viele Geschäfte, Cafés und Restaurants, kleine Hotels und Pensionen, Schloss Lutherstadt Wittenberg, Stadtgraben und Luthergarten, Arthur-Lambert-Stadion, ARSENAL-Einkaufszentrum
o öffentlicher Personennahverkehr:: Regio-Bahnhof Altstadt ca. 700 m/10 min., Hauptbahnhof ca. 1,3 km/18 min., Bus ca. 400 m/7 min.
o Autoanbindung: Bundesstraße B2 1,5 km, Autobahn A9 ca. 20 km, Jüterborg ca. 41 km, Flughafen Leipzig ca. 72 km, Flughafen BER ca. 102 km

3D Rundgang

Infos anfordern

*“ zeigt erforderliche Felder an

Diese Website ist durch reCAPTCHA geschützt und es gelten die Datenschutzerklärung und Nutzungsbedingungen von Google.